Оказывается, даже на такой маленькой площади в 33 кв.м. можно сделать современное и функциональное пространство, в данном случае включающее в себя отдельную спальню и гардеробную.
Планировка
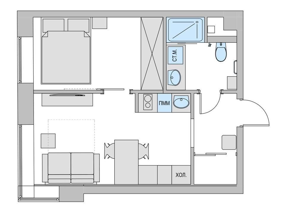
Дизайнерам удалось увеличить ванную комнату за счет не жилого коридора и сделать спальню отдельной. При этом гостиная получилась совсем небольшой, но при этом уютной.
Цветовая схема
Пространство включающее 2-3 цвета является идеальным решением для таких небольших помещений, как эта квартира. Светлые цвета позволяют визуально расширить пространство. Для большей выразительности и придания индивидуальности, дизайнер добавила в интерьер квартиры 33 кв.м. цветные элементы.
Бирюзовый прикроватный столик в спальне и такие же подушки на постели сыграли очень классные акценты, а подушки в гостиной и стул современной формы, находящийся в ванной прекрасно оживили интерьер.
Свет
Гостиную украшает красивая большая люстра, а зона, где находится кухня оформлена двумя подвесными светильниками. Стильная люстра из прозрачного материала, которая висит в спальне, подчеркивает общую легкость интерьера, а бра над кроватью позволяют сделать освещение интимным.
Смотрим!





